Ørum

Find din nye lejebolig i Ørum

Områder i Ørum

Ørum rummer 32 nye flotte rækkehuse med kort afstand til skole, børnehave, idrætshal og Brugsen.
Det er et trygt og aktivt lokalsamfund, hvor alt ligger inden for rækkevidde.
Boligerne er lyse og funktionelle med egen terrasse, have og parkering.
Boliger med meget lavt energiforbrug.

Her får du både ro, fællesskab og nem adgang til hverdagens aktiviteter.
En familievenlig by med sammenhold, tryghed og gode faciliteter.

Toftevænget

Læs mere

Egelundparken

Læs mere

Toftevænget

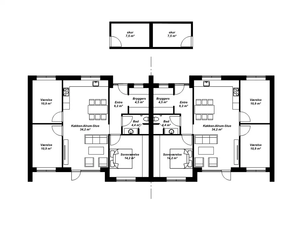
Nye fuldmurede topisolerede kvalitetsboliger 17 stk. 3 værelsers boliger på 80 m2 & 10 stk. 4 værelsers boliger på 114 m2. Gulvvarme i alle rum, og der er installeret ventilationsanlæg, som giver et dejligt indeklima..

Der medfølger alt i nye hvidevarer: Vaskemaskine, tørretumbler, opvaskemaskine, køle/fryseskab, induktionskogeplade og emhætte. 
Alle boliger har egen have med sydvendt terrasse, egen indkørsel samt stort isoleret opbevaringsdepot med god plads.

Der er indbygget LED-spots i køkken, bad samt entré.
Soveværelset har et stort indbygget vægskab. Alt inventar i boligerne er i god kvalitet fra Svane Køkkener.

Boligerne er beliggende på familievenlig lukket vej helt centralt i byen. Kun få min. gang fra dagligvareindkøb.
Ørum har meget at byde på, bl.a. et godt foreningsliv, halcenter, gode indkøbsmuligheder, vuggestue, børnehave, skole og flot natur.

Der er kort afstand til de omliggende større byer: Ca. 10 min. kørsel til Viborg, ca. 20 min. til Randers og ca. 45 min. til Aarhus.

Internet/TV: Mulighed for de bedste nyeste og hurtigste fiberforbindelser, da der findes 13 forskellige udbydere bl.a. Ørum Net, Stofa, Yousee, Waao.
Kontakt os 

Egelundparken

I Egelundsparken udlejer vi fire moderne og fuldmurede 4-værelses kvalitetsboliger 2 stk. på 106 m² og 2 stk. på 114 m² opført i 2020.

Boligerne er opført i høj kvalitet med topisolering, gulvvarme i alle rum og et ventilationsanlæg, der sikrer et sundt og behageligt indeklima året rundt.
Boligerne er praktisk indrettet med fokus på funktionalitet og komfort.

De leveres med alt i hårde hvidevarer, bl.a.: Vaskemaskine, tørretumbler, Opvaskemaskine, Køle/fryseskab, Induktionskogeplade, ovn og emhætte.

Køkken og inventar er fra Svane Køkkener i høj kvalitet, og i både køkken, bad og entré er der installeret energieffektive LED-spots.
Soveværelset har stort, indbygget garderobeskab med god opbevaringsplads.

Udearealer

Hver bolig har:
• Egen sydvendt have
• Solrig terrasse
• Privat indkørsel
• Stort isoleret depotrum med rigtig god plads

Beliggenhed
Egelundsparken ligger på en rolig og familievenlig lukket vej – helt centralt i byen.
Der er kun få minutters gang til dagligvarebutikker og øvrige faciliteter.

Ørum byder desuden på:
• Et aktivt foreningsliv
• Halcenter og idrætsfaciliteter
• Vuggestue, børnehave og skole
• Gode indkøbsmuligheder
• Smuk natur i nærområdet

Og du har samtidig kort afstand til større byer:
• Ca. 10 min. til Viborg
• Ca. 20 min. til Randers
• Ca. 45 min. til Aarhus

Internet & TV
Boligerne har adgang til nogle af de bedste og hurtigste fiberforbindelser, med op til 13 forskellige udbydere – bl.a. Ørum Net, Stofa, YouSee og Waoo.
Kontakt os 

CBH Ejendomme – ordentlighed, kvalitet og nærvær

CBH Ejendomme
Viskum Skovvej 3
8830 Tjele
Tlf.:  48 48 11 11
Mail: cbh@cbhejendomme.dk

closechevron-downellipsis-vchevron-down linkedin facebook pinterest youtube rss twitter instagram facebook-blank rss-blank linkedin-blank pinterest youtube twitter instagram